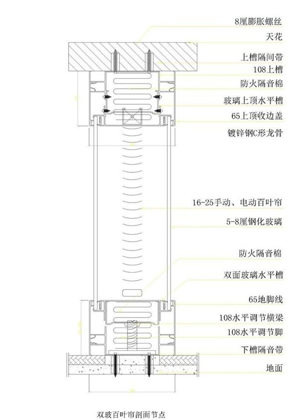
桃子视频成人看片APP玻璃隔間類結構平麵圖
類別:玻璃隔間類
參數:
結構類別(不限):單玻隔牆 ,雙玻隔牆, 百葉高隔間,麵板高隔間,造型隔牆,屏風式桃子视频在线观看
規格厚度(不限):26mm,80mm,86mm,90mm,100mm,108mm
配套門係統(不限):單玻係統門,雙玻係統門,百葉係統門,麵板係統門



最新產品
同類文章排行
- 分租辦公室如何選擇辦公室桃子视频在线观看牆
- 為什麽玻璃桃子视频在线观看在辦公裝修中應用廣泛
- 辦公室玻璃桃子视频在线观看設計的三種理念
- 辦公室使用白框玻璃桃子视频在线观看效果怎麽樣
- 如何將辦公室玻璃桃子视频在线观看打造得更好
- 雙玻璃百葉桃子视频在线观看為什麽受歡迎?原因都在這裏
- 辦公室玻璃桃子视频在线观看注意事項有哪些
- 雙玻璃百葉桃子视频在线观看多少錢一平方
- 玻璃桃子视频在线观看裝修要注意那些問題
- 辦公室使用玻璃桃子视频在线观看的好處
最新資訊文章
您的瀏覽曆史





